Leave a Message

Thank you for your message. I will be in touch with you shortly.

Explore Properties

Property Description

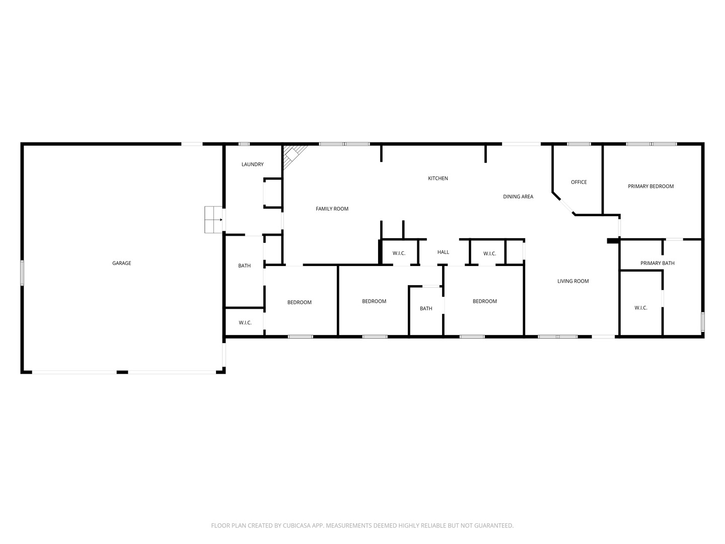
Turn-key 4-bedroom, 3-bath home offering over 2,000 square feet of well-designed living space, situated on three lots totaling approximately 1.54 acres in unincorporated Buckingham. The thoughtful layout includes a dedicated office, as well as a mudroom and laundry area conveniently located just off the garage. Multiple living areas provide flexibility for a variety of needs. The primary suite features a walk-in closet and a private bath with a separate shower and jetted tub. Two additional bedrooms share a Jack-and-Jill bathroom, while the fourth bedroom includes its own en-suite bath. The family room, located just off the kitchen, features a gas fireplace and creates a comfortable gathering space. Exterior features include an oversized, heated attached two-car garage measuring approximately 30x36, complete with a wash tub sink and a whole-home standby generator for added peace of mind. Additional highlights include a large covered back patio and a fenced yard. Outdoor amenities include a designated play area with rubber mulch, a fire pit, and a hot tub. Numerous updates have been completed throughout the home, including a new roof (2020), dishwasher (2021), refrigerator and microwave (2022), French doors (2022), Floors (2025) and a gas stovetop conversion and new sink (2025). A great opportunity for those seeking space, privacy, and functionality both inside and out.

Overview

Property Status
Active Under Contract
Lot Size
1.54 Acres
MLS ID
12557352
Property Type
Residential
Year Built
2008

Features & Amenities

Architecture Styles
Ranch
Garage Spaces
2.0
Water Source
Well
Roof
Asphalt
Parking
Concrete, Garage Door Opener, Heated Garage, Yes, Garage Owned, Attached, Driveway, Owned, Garage
Heat Type
Natural Gas
Air Conditioning
Central Air
Laundry Room
In Unit
Fireplace
Gas Log
Appliances
Microwave, Dishwasher, Refrigerator, Washer, Dryer, Stainless Steel Appliance(s), Cooktop, Oven, Range Hood, Water Softener Owned
Other Interior Features
Walk-In Closet(s), High Ceilings
Sewer
Septic Tank
Other Exterior Features
Hot Tub
School District
2
Sales Price
$339,900
Real Estate Tax
$5,572/yr
Zoning
SINGL

Downloads

321 S Maple Street

Schedule a Tour

I would love to help you see this beautiful home! As a full-service real estate agent, we can help you tour. Please submit an offer and answer questions about the buying process.

Thank you

for your interest in 321 S Maple Street, Buckingham, IL 60917

321 S Maple Street
Navigate

Mortgage Calculator

Estimate your monthly mortgage payment, including the principal and interest, property taxes, and HOA. Adjust the values to generate a more accurate rate.
$0,000 Your Payment 20 15 65
$0,000 Your Payment

I'm Interested In

321 S Maple Street

or
  • CallMaria Arseneau

    License #475202705

    (815) 383-2093
  • Follow Us On Instagram